这个问题算得上是老生常谈了。土木工程是个很宽泛的概念,如果与建筑学相比的话,更确切的比较应该是结构工程和建筑学。
很多回答都强调了建筑学侧重于“艺术”、“外形”和“美观”,这是一种很普遍的误解。很多人以为建筑师就像艺术家一样飘逸洒脱,结果去学了建筑学,一下就傻眼了。
想一下你日常生活中的例子,就能明白建筑学的研究对象是什么。
去一家大型综合医院看一下:门诊和急诊为什么这样安排?既能共同利用化验、拿药,又不互相干扰。急性传染病人的就医路线在哪里?是如何跟非传染病区隔离的?护士站设置在什么位置?既能节省空间,服务范围又能覆盖尽量多的病床。
去火车站看一下:检票后的区域和不需买票就能进入的区域是如何隔离的?上车旅客和下车旅客的流线怎么安排?那么多旅客上厕所、喝开水的需求怎么满足?厕所怎么设置的既合理又方便?
去小区看一下:怎么让每栋楼都能享受到通风和日照?不同高度的住宅如何安排,才能既有日照,又不会侵犯隐私?小区的地下车库出入口怎么安排,方便每栋楼的用户出入停车?小区的幼儿园设置在哪里?既不会太吵,也不会不见阳光?
看一下你自己的房子或者宿舍:为什么窗台是这么高?既不会太矮导致不安全,也不会太高导致不方便往外看。为什么楼梯的尺寸是这样的,不会太陡也不会太缓,爬起来不吃力,刚刚好。
看一下你的教学楼:为什么楼梯要比住宅楼的宽?为什么宽度刚刚好能满足下课时的人流?男女厕所怎么设置合理?怎么保证下课的时候女生不至于集中排队上厕所?
去大商场看一下:楼梯和电梯是怎么设置的?电梯旁为什么要有防火卷帘?失火了怎么保证大家能快速的找到楼梯下楼疏散?
这样的例子有很多很多,美观固然重要,但这只是一个方面,而且可能是最不重要的一个方面。
而土木工程,确切的说是结构工程,研究任务则是保证建筑的结实和安全,再直白点,就是在地震、风、温度、恐怖袭击等外部因素作用下不倒塌不破坏。这是一个很艰巨的任务,责任也很重大。一定程度上,这也是门艺术,需要人类最高端的创造力。金字塔、长城、索菲亚大教堂、埃菲尔铁塔、帝国大厦、金门大桥、布鲁克林大桥等等人类文明的标志,同样也是结构工程的伟大成就。
地震了,怎么保证房子不倒塌?地基土很差,怎么样处理地基从而保证房子可以不像比萨斜塔那样?台风来了,怎么保证房子是安全的,不至于像美国飓风那样把房子都吹倒?要做一个电影院或者大礼堂,怎么样做到几十米的空间里没有一根柱子?要做一个鸟巢那样的体育场,怎么样让观众席头顶上的顶棚可以悬挑这么远?
不多说了,用几幅我手边的图来说明问题吧。
第一个例子是我做的一个高层住宅:
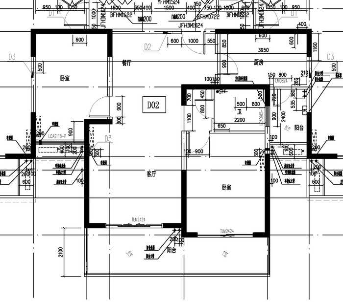
这是建筑师眼中的住宅一部分:

这张建筑平面图表示了空间用途分类(客厅、卧室、阳台、卫生间、厨房)、门窗尺寸、栏杆、地面排水坡度、结构剪力墙(涂黑墙体)、填充墙体(不涂黑墙体)、空调室内机和室外机的预定位置、雨水管和地漏的位置。
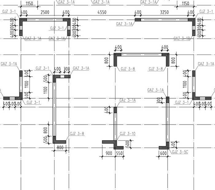
这是结构工程师眼中的相应部分的框架梁和连梁:

这张结构梁平面图表示了该区域所有框架梁、连梁和次梁的位置、类型、编号、截面尺寸,每根梁纵筋和箍筋的根数、级别、直径、间距。这些都是通过相应计算得来的。
这是结构工程师眼中的相应部分的剪力墙:

这张墙体平面图表示了剪力墙的位置和尺寸,边缘构件(暗柱)的位置、尺寸、类型、编号。每个边缘构件还有相对应的放大详图,表示它内含钢筋的根数、直径、级别、间距。
第二个例子是我做的一个学校体育馆:
这是建筑师眼中的体育馆:

这张建筑师制作的效果图主要用途是和甲方交流,让投资方了解将来他们的房子建成后是什么样子的。此外,也要拿效果图和政府规划部门沟通,确定符合规划要求(比如不能在古建筑特色街区内或者附近修建很突兀的后现代主义奇形怪状的建筑)。
这是结构工程师眼中的体育馆:

这是我用 Revit Structure 做的BIM数字化结构模型,包括了所有的结构设计信息,所有构件(桩、承台、基础底板、地下室墙、柱、梁、板、楼梯、屋顶钢网架)的位置和尺寸。目的是提供给建筑师和其他工程师(暖通空调、给排水、电气等)一个数字化的模型,让他们了解结构设计的情况,确定结构梁的布置不会导致楼梯的部分位置太矮导致用户碰头、布置的设备管道是不是跟结构梁冲突、空调风管是不是需要穿过结构墙体、设备机房内结构梁下的净高是不是足够放下庞大的专业设备等等。注意模型里的桩基础属于隐蔽工程,深埋在地下,其它外行都不会关心,但这其实是最重要的环节之一。否则,房子就变比萨斜塔了。
关键词:土木工程,与,建筑,学的,区别,是什么,这个,